Mehrfamilienhaus

HF Bauunternhemen GmbH

Neubau

Wohnen

2017


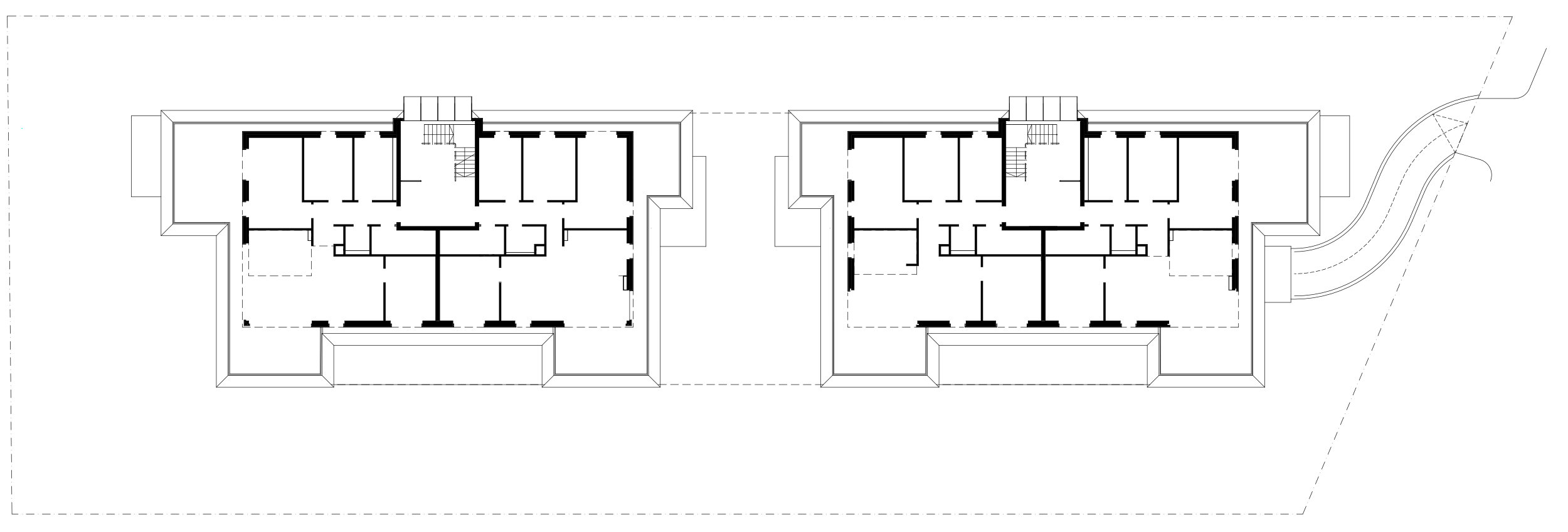
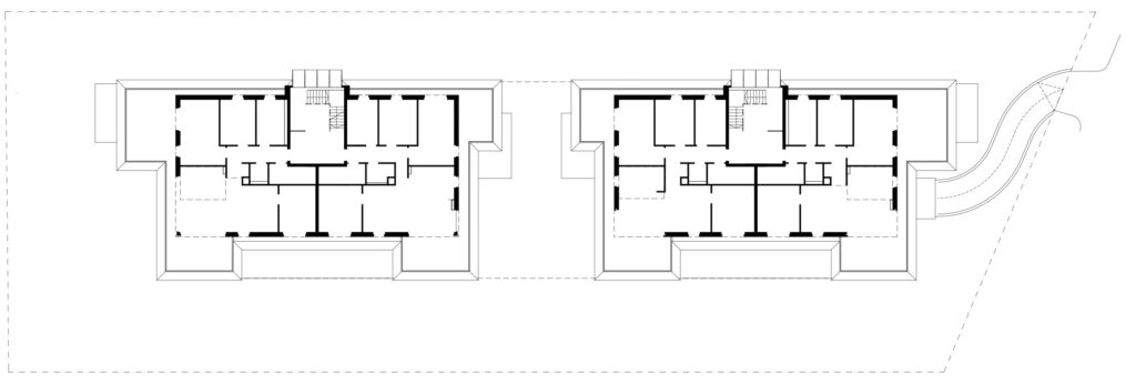
Eigentumswohnungen – Neubau am Apothekenweg

Unter dem Leitgedanken „Grüner Wohnen“ entstand am Apothekenweg eine Wohnanlage mit 20 Eigentumswohnungen. Die Wohnungen mit ca. 80 bis 120 m² Wohnfläche bieten durchdachte Grundrisse, großzügige Wohnbereiche und eine helle, offene Atmosphäre. Ein besonderes Augenmerk lag auf der Verbindung von Innen- und Außenraum. Alle Wohnungen verfügen über Terrassen oder Balkone, die den Wohnraum ins Freie erweitern und zusätzliche Aufenthaltsqualität schaffen.
Die Erschließung erfolgt barrierearm über einen Aufzug, der alle Geschosse miteinander verbindet. Eine Tiefgarage mit Stellplätzen sorgt für eine komfortable und ruhige Organisation des ruhenden Verkehrs.

Unser Büro begleitete das Projekt in den Leistungsphasen 1–4, von der ersten Konzeptidee über die Entwurfsplanung bis zur Genehmigungsplanung.


Lydwina Wegener, Katja Peckmann, Diana Kandora

HF Bauunternhemen GmbH, Braunschweig

build | Architektur Visualisierung, Otterndorf

2019

LP 1-4

Wolfenbüttel

Gerne können Sie sich ein Projektblatt von diesem Projekt im A4-PDF-Format herunterladen.

pdf-morese 1

Weitere Projekte

KONTAKT

Lassen Sie uns zusammen tolle Räume erschaffen….

Zusammen mit Ihnen schaffen wir den Raum und die Architektur, die dem Ort und dem Budget entspricht. Nachhaltige Planungen sind gut Planungen.

Wenn Sie uns noch besser kennenlernen möchten, dann lässt sich das am besten über ein gemeinsames Projekt realisieren.